Xác định kích thước nhà gỗ 3 gian 2 chái là bước quan trọng đầu tiên để sở hữu một không gian sống đậm chất cổ truyền mà vẫn tiện nghi. Tỷ lệ kích thước chuẩn không chỉ giúp ngôi nhà hài hòa về kiến trúc mà còn đảm bảo các yếu tố phong thủy, mang lại tài lộc cho gia đình. Mời quý vị cùng tham khảo các thông số kích thước phổ biến và hợp lý nhất hiện nay.
Tại sao cần xác định kích thước nhà gỗ 3 gian 2 chái chuẩn?
Việc xác định chính xác kích thước nhà gỗ 3 gian 2 chái ngay từ giai đoạn thiết kế là bước đệm quan trọng để sở hữu một công trình trường tồn. Quý gia chủ có thể xem xét chi tiết tầm quan trọng của việc này qua 3 khía cạnh dưới đây:
Ảnh hưởng đến kết cấu và độ bền
Việc tính toán kích thước nhà gỗ 3 gian 2 chái chuẩn xác ngay từ bản vẽ giúp hệ khung cột, xà, kẻ ngồi liên kết chặt chẽ qua các mộng gỗ. Kích thước các gian và bước cột hợp lý sẽ giúp tải trọng mái được phân bổ đều xuống nền móng, đảm bảo sự vững chãi cho công trình. Ngược lại, nếu tỷ lệ sai lệch, ngôi nhà dễ gặp tình trạng xô lệch, mộng không khít hoặc cong vênh sau thời gian dài chịu tác động của thời tiết.

Ảnh hưởng đến công năng sử dụng và sinh hoạt
Một bộ khung kích thước hợp lý sẽ tối ưu hóa không gian, phân định rõ nơi thờ cúng linh thiêng ở gian chính và sự riêng tư tại hai chái buồng gói. Kích thước chuẩn giúp gia chủ dễ dàng bài trí nội thất đồ sộ như trường kỷ, sập gụ, tủ chè mà không gây cảm giác chật chội. Đồng thời, khoảng cách các cột được tính toán kỹ cũng tạo nên luồng di chuyển thông thoáng, thuận tiện cho sinh hoạt hàng ngày của các thành viên trong gia đình.
Ảnh hưởng đến thẩm mỹ và phong thủy tổng thể
Kích thước nhà gỗ thường được lựa chọn dựa trên các cung số đẹp của thước Lỗ Ban để cầu mong tài lộc và bình an. Sự cân đối giữa chiều cao tàu mái, độ rộng lòng nhà và phần hiên tạo nên tỷ lệ vàng, giúp ngôi nhà toát lên vẻ uy nghiêm, cổ kính. Tổng thể công trình hài hòa về kích thước sẽ mang lại cảm giác thanh thoát, tránh sự nặng nề và tôn lên vẻ đẹp của kiến trúc cổ truyền Bắc Bộ.

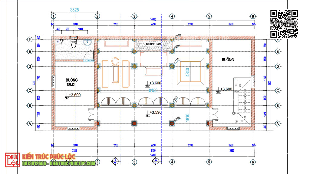
Mặt bằng kích thước nhà gỗ 3 gian 2 chái phổ biến
Gia chủ có thể tham khảo các kích thước phổ biến dưới đây để dễ dàng hình dung mặt bằng tổng thể:
Kích thước tổng thể (chiều ngang, chiều sâu)
Kích thước nhà gỗ 3 gian 2 chái tổng thể cần đảm bảo sự cân đối giữa chiều ngang và chiều sâu để tạo cảm giác vững chãi. Chiều ngang phổ biến phù hợp với khuôn viên đất trung bình, giúp nhà không bị lấn át bởi sân vườn xung quanh. Phần hiên trước nhà đóng vai trò kết nối không gian bên trong với cảnh quan bên ngoài.
Hiên nhà tạo khoảng đệm đón gió trời, tránh mưa tạt vào gian chính và tăng tính thẩm mỹ tổng thể. Gia chủ nên chọn tỷ lệ chiều sâu hài hòa để đảm bảo ánh sáng tự nhiên len tỏa đều các gian. Sự cân đối này giúp công trình vừa thoáng đãng vừa gần gũi với thiên nhiên.

Kích thước 3 gian chính
Ba gian chính là điểm trọng tâm của nhà gỗ 3 gian 2 chái, nơi bố trí không gian thờ cúng và sinh hoạt chung. Gian giữa thường được ưu tiên rộng rãi hơn để đặt bàn thờ tổ tiên và tiếp khách, tạo sự trang nghiêm. Hai gian bên phục vụ nhu cầu sử dụng hàng ngày của gia đình.
Tỷ lệ giữa các gian cần đồng đều để kiến trúc hài hòa, tránh cảm giác nặng đầu hoặc lệch trục. Khoảng cách cột hợp lý tạo lối đi thông thoáng giữa các dãy cột, thuận tiện cho việc di chuyển. Sự sắp xếp này đảm bảo cả công năng lẫn phong thủy đều được tối ưu.
Kích thước 2 chái nhà gỗ
Hai chái nằm đối xứng hai bên gian chính trong kích thước nhà gỗ 3 gian 2 chái, thường nhỏ gọn hơn để giữ sự thanh thoát. Chái phù hợp làm phòng ngủ hoặc không gian riêng tư, tránh chen chúc với khu vực chung. Kích thước vừa đủ giúp phân chia công năng rõ ràng cho từng thành viên. Chái hẹp hơn gian chính tạo điểm nhấn kiến trúc, ưu tiên không gian mở cho phần trung tâm nhà. Sự đối xứng này mang ý nghĩa phong thủy, tượng trưng cho sự hài hòa âm dương. Gia chủ có thể linh hoạt điều chỉnh theo nhu cầu nhưng vẫn giữ tỷ lệ tổng thể.
>> Xem thêm: Nhà gỗ xưa – Nét đẹp kiến trúc cổ truyền trường tồn thời gian
Kích thước nhà gỗ 3 gian 2 chái theo các yếu tố thực tế
Kích thước nhà gỗ 3 gian 2 chái cần điều chỉnh linh hoạt theo điều kiện thực tế của gia chủ để đảm bảo công trình phù hợp lâu dài. Ba yếu tố chính là diện tích đất, nhu cầu sử dụng và ngân sách sẽ quyết định tỷ lệ gian chái cụ thể:
Diện tích mặt bằng và khuôn viên sân vườn
Diện tích đất rộng cho phép gia chủ mở rộng kích thước nhà gỗ để tạo không gian thoáng đãng hơn. Khuôn viên sân vườn cần đủ chỗ chừa lối đi, tiểu cảnh và cây xanh xung quanh nhà. Tỷ lệ nhà chiếm khoảng 30-40% tổng diện tích đất giúp tổng thể hài hòa, tránh cảm giác chật hẹp.
Khi đất hẹp, nên ưu tiên chiều sâu nhà ngắn gọn và hiên vừa phải để tận dụng tối đa không gian. Khuôn viên sân trước cần ít nhất 5-7 m để đặt cổng, bình phong và lối vào chính. Sự cân đối này không chỉ tiện sử dụng mà còn tăng giá trị phong thủy của ngôi nhà.

Nhu cầu sinh hoạt và số lượng thành viên trong gia đình
Gia đình đông thành viên cần kích thước nhà gỗ 3 gian 2 chái với chái rộng hơn để làm buồng ngủ riêng biệt. Gian chính ưu tiên thờ cúng và tiếp khách, hai gian bên hỗ trợ sinh hoạt chung. Nhu cầu sử dụng quyết định phân bổ không gian nội thất như trường kỷ, sập gụ hay tủ kệ.
Gia đình ít người có thể thu gọn chái để tập trung vào gian giữa trang nghiêm. Số lượng thế hệ chung sống ảnh hưởng đến bố cục buồng trong và lối đi riêng tư. Điều chỉnh theo nhu cầu giúp ngôi nhà tiện nghi, phù hợp với lối sống truyền thống Việt.

Ngân sách đầu tư và mức độ hoàn thiện nội thất
Ngân sách lớn cho phép chọn kích thước nhà gỗ 3 gian 2 chái rộng rãi với chi tiết đục chạm tinh xảo. Nhà nhỏ gọn tiết kiệm khối lượng gỗ và nhân công, phù hợp với đầu tư vừa phải. Mức độ hoàn thiện nội thất quyết định thêm tủ thờ, hoành phi hay bình phong. Gia chủ nên dự trù 60-70% ngân sách cho khung nhà, phần còn lại cho nội thất và hoàn thiện. Đơn vị uy tín sẽ tư vấn tỷ lệ kích thước tối ưu theo khả năng tài chính. Cách tiếp cận này giúp công trình bền vững mà không vượt ngân sách dự kiến.

Kích thước nhà gỗ 3 gian 2 chái chuẩn là yếu tố then chốt quyết định độ bền kết cấu, công năng sử dụng và vẻ đẹp hài hòa phong thủy lâu dài. Quý gia chủ đang tìm hiểu kích thước nhà gỗ phù hợp với diện tích đất và nhu cầu sử dụng, có thể tham khảo Nhà gỗ Phúc Lộc hoặc Kiến trúc Phúc Lộc để được tư vấn chi tiết phương án mặt bằng tối ưu, đội ngũ kiến trúc sư sẽ giúp quý gia chủ khảo sát thực tế, đo đạc chính xác và đưa ra bản vẽ 3D cụ thể theo yêu cầu của gia đình.
Thông tin về nhà gỗ Phúc Lộc
Số điện thoại: 0973812666
Nhận tư vấn thiết kế: Th.s kiến trúc sư Nguyễn Huy Khiêm
Xưởng sản xuất: xã Cần Kiệm, huyện Thạch thất, Tp Hà Nội (dưới chân núi chùa Tây Phương)
>Tham khảo thêm video về nhà gỗ truyền thống Bắc Bộ
>Tham khảo thêm những dự án nhà gỗ đẹp
